En Alquiler
ALQUILER DE OFICINAS Y LOCALES COMERCIALES - CAFETERIA- COMPLEJO CHAUVIN
Código: 203966

Mathew & Catamarca, B7600 Mar del Plata, Provincia de Buenos Aires, Argentina, Mar Del Plata, Buenos Aires, Argentina.

$720.000

Local Comercial
Compartir esta Propiedad

Descripción de la Propiedad

"COMPLEJO PATIO CENTRAL" - CHAUVIN - UBICADO A UNA CUADRA DE AV. INDEPENDENCIA Y A 4 CUADRAS DE AV. PASO, CON GRAN AFLUENCIA DE CIRCULACION VEHICULAR.

OFRECEMOS OFICINAS Y LOCALES COMERCIALES PARA DIFERENTES RUBROS PROFESIONALES, DE LOS CUALES UNO DE ELLOS TIENE INSTALACIONES PARA GASTRONOMIA (IDEAL CAFETERIA)

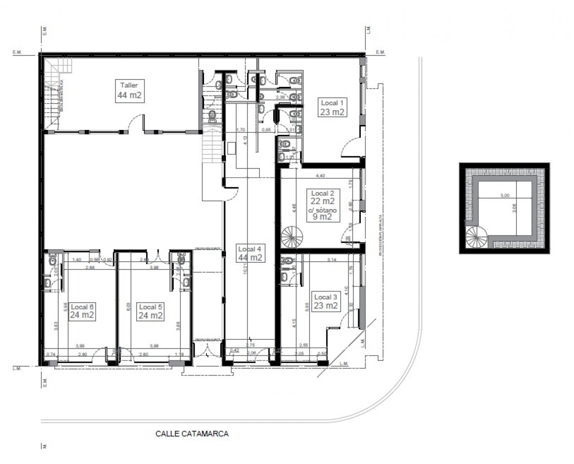
TALLER 44 M2 - RESERVADO
LOCAL 1 - 23 M2 - RESERVADO
LOCAL 2 - 22 M2 + SOTANO DE 9 M2 - $ 870.000.- MENSUALES (POSIBILIDAD DE ANEXAR PARA EL LOCAL CAFETERIA EN EL CASO DE DE HAGAN ELABORACIÓN)
LOCAL 3 - 23 M2 - RESERVADO
LOCAL 4 - 44 M2 + PATIO DE 48 M2 - GASTRONOMICO - $ 1.500.000.- MENSUALES
LOCAL 5 - 24 M2 - $ 720.000.- MENSUALES
LOCAL 6 - 24 M2 - $ 720.000.- MENSUALES
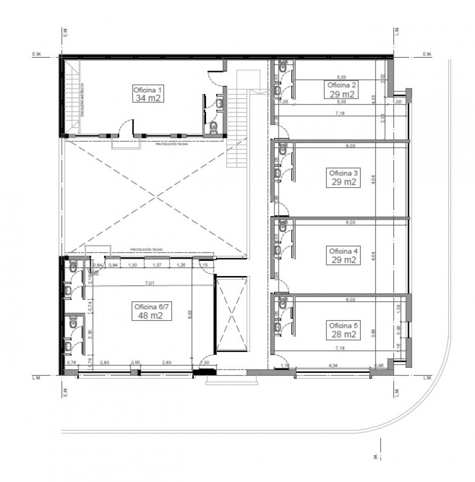
OFICINA 1 - 34 M2 - RESERVADA
OFICINA 2 - 29 M2 - $ 830.000.- MENSUALES
OFICINA 3 - 29 M2 - $ 830.000.- MENSUALES
OFICINA 4 - 29 M2 - $ 830.000.- MENSUALES
OFICINA 5 - 28 M2 - RESERVADA
OFICINA 6 Y 7 - 48 M2 - RESERVADA

* LOS CONTRATOS TENDRAN UNA VIGENCIA DE 2 AÑOS, EL MONTO LOCATIVO SERA + IVA SI CORRESPONDIERA Y CON AJUSTE TRIMESTRAL SEGUN INDICE IPC.
LOS SERVICIOS CORRESPONDIENTES SERAN A CARGO DEL LOCATARIO.

PARA MAS INFORMACION Y COORDINAR UNA VISITA, COMUNIQUESE CON NOSOTROS AL 2234253103.

ADRIANA MARTELLITI PROPIEDADES REG. 4189


Mas detalles