En Venta
SEMIPISO DE 3 AMBIENTES - UNIDADES DISPONIBLES- MONIQUE FORET - GUEMES
Código: 197217

San Lorenzo 1845, B7602GYK Mar del Plata, Provincia de Buenos Aires, Argentina, Mar Del Plata, Buenos Aires, Argentina.

USD247.200

Departamento
Compartir esta Propiedad

Descripción de la Propiedad

El proyecto consiste en un edificio de viviendas ubicado en la calle San Lorenzo, entre Arenales y Lamadrid, una zona muy próxima al paseo Aldrey y la zona comercial de Güemes.
Como linderos hay un chalet de cada lado, de 2 niveles cada uno.
Cuenta con unidades funcionales destinadas a viviendas de 2 y 3 ambientes, con distribución funcional, ambientes amplios e interiores luminosos.
Además de la comodidad de cada unidad, el edificio ofrece espacios comunes como un quincho equipado y un gimnasio.
Además cuenta con bauleras, estacionamiento semicubierto y, en la última planta, se encuentran tres terrazas privadas con jacuzzi y parrilla.

Se desarrolla en 6 niveles, y por encima se ubican 3 terrazas privadas
descubiertas para determinados departamentos.

DEPARTAMENTOS DISPONIBLES:
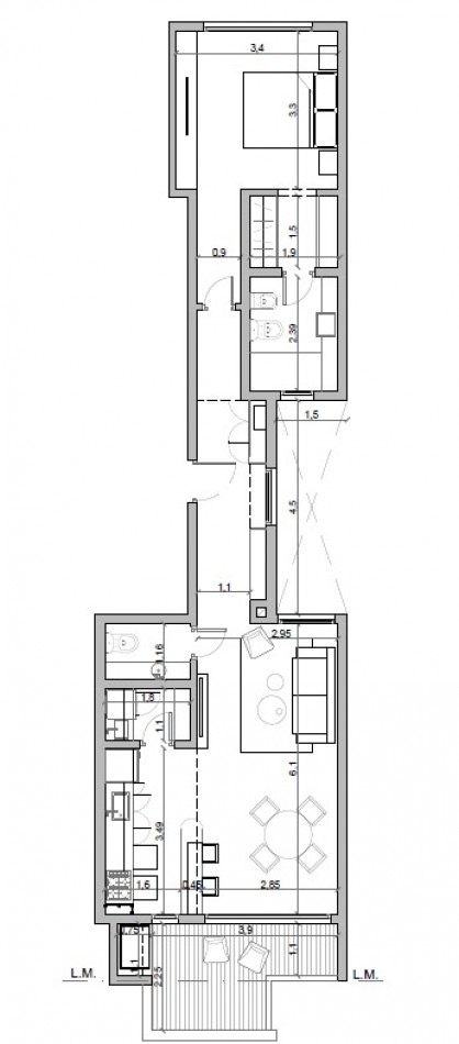
QUINTO PISO - 3 AMBIENTES - 103 M2 TOTALES/ 96 M2 CUBIERTOS - USD 247200.- CONTADO.
TERCER PISO - 2 AMBIENTES - 80 M2 -TOTALES/ 75 M2 CUBIERTOS - USD 176000 .-CONTADO.
QUINTO PISO - 2 AMBIENTES - 80 M2 - TOTALES/ 75 M2 CUBIERTOS - USD 192000.- CONTADO.

FINANCIACION: ANTICIPO 30% Y SALDO 24 CUOTAS

COCHERAS USD 20000.-
BAULERAS USD 5000.-
TERRAZAS PRIVADAS USD 20000.-

* POSESION ESTIMADA EN DICIEMBRE 2027

Mas detalles
Ver video de la propiedad